Sportgarderoben mit Duschen in Villeneuve FR.
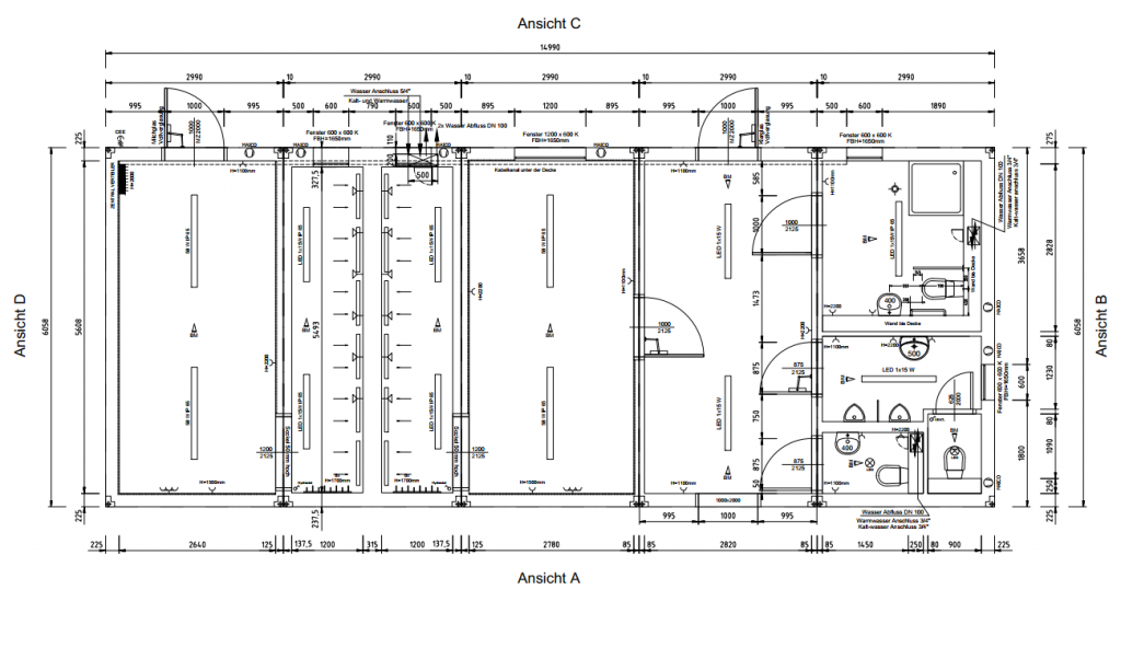
Für die Gemeinde Surpierre realisierte Riedo Mobilbau AG eine modulare Sportgarderobe mit integrierten Duschanlagen. Die Anlage besteht aus fünf Modulen und bietet auf rund 15 × 6 Metern funktionale Umkleide- und Duschbereiche mit keramischen Boden- und Wandplatten.
Die Grossraumduschen sind mit Presto-Duscharmaturen ausgestattet und sorgen für hohen Nutzungskomfort. Eine leistungsstarke Multi-Split-Wärmepumpe mit 10,6 kW gewährleistet effizientes Heizen und Kühlen. Das Projekt wurde in kurzer Zeit umgesetzt: zwei Monate Planung, drei Monate Produktion und nur eine Woche Montage. Die Anlage ist auf eine Mietdauer von zehn Jahren ausgelegt – robust, hygienisch und energieeffizient.

Sportgarderoben Surpierre: 5 Module, Wärmepumpe, Grossraumduschen. Riedo Mobilbau – modulare Sanitär- und Garderobenlösungen.Modulares Schulprovisorium in Münchenwiler: 6 Module, Wärmepumpen, schnelle Montage. Riedo Mobilbau – flexible Schulräume im Modulbau.
Projektdauer
| Mietdauer | 10 Jahre |
| Erstellung | Oktober 2025 |
| Planungsdauer | 2 Monate |
| Produktionsdauer | 3 Monate |
| Montagedauer | 1 Woche |
Projektdetails
| Endkunde | Commune de Surpierre |
| Typ | Sportgarderoben mit Duschen |
| Anlagefläche | 14.99 x 6.05 x 3.02 m |
| Anzahl Module | 5 Module |
| Modulgrösse | 6.05 x 2.45 x 3.02 m |
| Heizung | Wärmepumpe Multi-Split 10,6 kW Leistung |
| Spezielles | Duschbereich mit Boden- & Wandplatten Keramik, Grossraumdusche mit Presto Duscharmaturen |
Impressionen









